Fragranit Spülbecken BFG 611-62, reversibel
Granitausführung: Sand
Variable Abtropffläche, kann sowohl rechts als auch links platziert werden
Abmessungen: 620 × 500 mm
Ausschnitt: 600 × 480 mm (Radius 20 mm)
Spülbecken: 340 × 420 × 200 mm
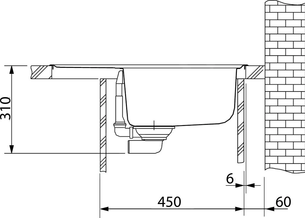
Unterschrank: ab 450 mm
– obere Montage
– 4 Stellen für die Öffnungen
Achtung! Platzierung des Spenders in Schränke ab 600 mm
Der Preis beinhaltet:
– Siebkorbventil 3 1/2“ mit Überlauf
– platzsparendes Siphon 6/4“ mit Abzweigung zum Geschirrspüler
– Platzierung eines Geschirrspülmittelspenders möglich
Dieses Produkt kann Ihnen ohne Originalverpackung geliefert werden. Dies dient dazu, das Produkt während des Transports zu Ihnen vor Schäden zu schützen.
















Rezensionen
Es gibt noch keine Rezensionen.